
Crane de ridicare grele, Crane de ridicare cu fascicul dublu 30 Ton
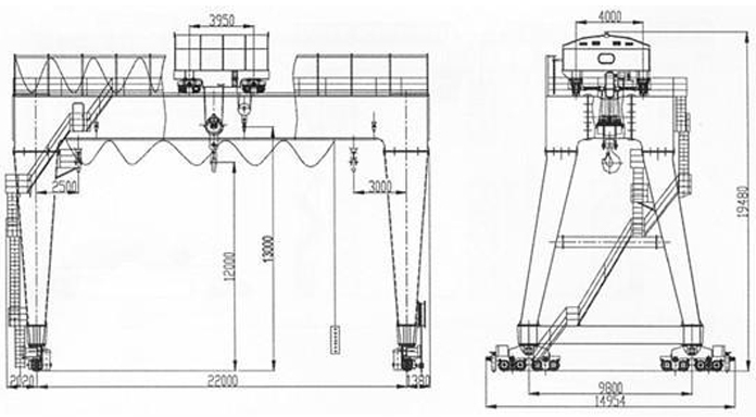
Cârligul cu portbagaj cu cârliguri este aplicat în afara depozitului sau feroviar lateral pentru a face lucrări de ridicare și descărcare obișnuite. Acest tip de macara este compus din punte, picioare de sprijin, organ de călătorie cu macara, cărucior cu troliu puternic de ridicare, echipament electric și sistem de control. Ca design grele, poate fi utilizat pe scară largă în toate domeniile industriale.
macara de ridicare greu, macara portantă dublă 30 tone
Cârligul cu portbagaj cu cârliguri este aplicat în afara depozitului sau feroviar lateral pentru a face lucrări de ridicare și descărcare obișnuite. Acest tip de macara este compus din punte, picioare de sprijin, organ de călătorie cu macara, cărucior cu troliu puternic de ridicare, echipament electric și sistem de control. Ca design grele, poate fi utilizat pe scară largă în toate domeniile industriale.






English
slovenščina
Español
српски (ћирилица)
slovenčina
Latviešu
اردو
Português
हिंदी
hrvatski
Italiano
Svenska





